产品分类

PRODUCT CATEGORY

技术文章/ TECHNICAL ARTICLES

我的位置:首页  >  技术文章  >  浅谈KNX总线在智能照明控制系统中的应用

浅谈KNX总线在智能照明控制系统中的应用

更新时间:2023-06-19      浏览次数:1118
胡冠楠
开云官方端网站登录入口电气股份有限公司 上海嘉定
【摘要】于现代照明对灵活性、舒适性、节能性和智能化的要求,提出KNX现场总线控制的智能照明系统的方案。在介绍KNX总线系统的组成及通信原理的基础上,以报告厅为例,详细介绍KNX总线系统的软硬件实现方法。运行结果表明,系统运行稳定可靠,能够实现开关、调光、集中控制、场景控制等多种灵活控制功能,具有节能性、交互性和兼容性的优点。系统的应用,充分展现了KNX现场总线的智能性、开放性、便利性和灵活性,满足了现代智能照明的要求,为类似照明控制提出借鉴。 
【关键词】KNX总线;智能照明;bus;报告厅;Winswitch3 
 
0 引 言
     随着我国经济的发展和人民生活水平的提高,人们对照明的要求也不断提高,当前,照明不仅要满足人们在视觉上丰富的感官效果,而且要满足人们对照明舒适性、节能性、自动化与信息化等方面的要求。传统手动控制、BAS控制的照明控制方式控制模式固定,控制效果单一,已无法满足人们对现代照明的要求,更不能满足人们对照明智能化和节能降耗的追求。依托计算机技术、通信技术和传感器技术等现代技术而发展起来的智能照明技术可以很好解决上述问题,为此得到广泛的关注和发展。 
     当前,智能照明技术一般可分为电力载波类、无线控制类和总线控制类。张玉杰等研究了电力载波类智能照明控制系统及应用,采用低压电力线路作为智能照明系统的信号传输线路,避免重复布线,减少布线和施工成本,但是电力载波信号受负载变化、脉冲干扰影响衰减较为严重,由于无冲突避免机制,容易导致数据错乱、丢失,不适合长距离、多设备通信。孙海艳等研究了基于ZigBee的智能照明技术,王曦等研究了基于远程红外的智能照明技术,曹祥红等研究了基于WiFi的智能照明技术,这些智能照明技术均属于无线控制类智能照明控制系统,应用时无需布线,操作灵活方便,适合于面积较小的智能家居,由于其无线信号受障碍物影响而衰减严重,无法应用于需要大面积、远距 离通信的智能照明控制场合。对于总线控制类的智能照明技术,郭铁桥等研究了基于CAN的智能照明控制技术,于莉媛等研究了基于C—Bus总线的智能照明控制技术,这些总线类的照明技术均满足了现代照明要求,具有控制效果好,运行稳定,满足大空问、多设备、远距离智能照明控制要求,但是总线协议的交互性、兼容性相对较差。KNX总线技术基于全球性的住宅与楼字控制标准,提供开发式的标准协议,不仅具有电力载波类、无线控制类、总线控制类智能照明技术的优点,而且具有很好的交互性和兼容性。因此,本文提出基于KNX总线的智能照明控制系统方案,以报告厅为例,介绍系统的开关控制、调光控制、感应控制 和场景控制等控制功能,从而实现照明系统的智能化、舒适性和节能性等效果。 
 
1 系统组成及通信原理 
     KNX硬件系统由系统元件、传感器和执行器三部分元件构成,采用KNX总线通信,设备之间以双绞线为传输介质,以KNX报文实现信息传递,其中报文结构包括控制字段、地址段、长度、实用数据等,控制字段控制报文是否重复、报文发送的优先级等。 地址段由源地址与目标地址组成,源地址为总线元件的物理地址,按照域一线路一总线元件的方式配置,每个物理地址均W一的,为总线元件之间区别的W一地址,用于系统调试、检测及维护。目标地址为总线元件的组地址,按照主组/中间组/子组方式 配置,用于连接传感器与执行器的功能。编程时传感器只能发送一个组地址命令,执行器可以接收多个组地址的命令,其结构如表l所示。长度字段记录实用数据的字节长度,实用数据段用于定义应用的不同功能,检验字节用于对报文执行奇偶校验。
表1 物理地址与组地址
 
2 KNX总线在报告厅照明系统中的应用
 
2.1 报告厅照明控制要求 
     报告厅作为各类会议、新闻发布、报告、演讲等活动的重要场所,对照明要求较高。本文以一般报告厅为例,介绍基于KNX总 线的报告厅智能照明设计与应用。一般报告厅包含大会议厅、贵宾室等房间,要求照明系统具有开关、调光、分区、遥控、集中控制等多种控制方式,对不同应用模式具备不同的场景控制。比如在报告模式,要关闭报告厅听众席的灯光,逐渐调暗投影仪周围的灯光,在保证基本照明的情况下,更大限度地观看投影内容;在讨论交流模式,要求打开并调亮主席台与听众席位上所有的灯光等,作为公共大空间环境,要求系统运行稳定可靠,操作简单方便,并具备一定的节能效果。 
2.2系统硬件设计 
     根据报告厅照明控制要求,系统采用符合KNX现场总线标准的bus智能建筑控制系统。依据报告厅的建筑平面图,设计bus控制平面图,如图l所示。
图1 bus控制平面图
     报告厅由贵宾室、大会议室和设备控制室组成,考虑bus需要对贵宾室和大会议室灯光设备的控制,贵宾室照明由筒灯、射灯和灯带等灯具构成,控制回路多,且贵宾厅使用较少,因此,设计时在贵宾室配置6324五联智能面板一个和6131移动感应器一个。大会议室由筒灯、壁灯等灯具构成,控制回路多,空间跨度大,设计时在报告厅入口处配置一个6324五联智能面板。设备控制室控制设备较少,配置6324五联智能面板一个。对于系 统执行器的选择,由于系统需要开关控制、调光控制等控制方式,设计时选用SA/S12.16.1开关驱动器、6197+6593+6594调光控制器、UD/S 2.230.1通用调光器等为执行器,配置系统元件SV/S30.640.5,所有执行器和总线元件均安装在配电箱的DIN 导轨上,执行器和总线元件设备之间用bus总线J—Y(st)YH相连,并连接至现场传感器。
 
 
2.3 软件设计 
     在硬件设计完成的基础上,根据报告厅智能照明控制要求, 需要对智能照明系统进行软件设计,基于KNX总线的智能照明控制系统的软件编程采用ETS3编程软件实现,编程时首先在ETS3中创建房间,在房间中添加传感器、执行器和总线元件,设置传感器和执行器的物理地址,分别下载物理地址。之后根据功能的不同设置组地址,功能相同的对象组地址相同,传感器同一功能只能有一个组地址,执行器组地址根据控制功能的不同可以划分多个组地址。考虑到整个应用系统程序较长,选取贵宾厅灯光控制来介绍软件编程设计,贵宾厅五联面板的第一、二、三联分别控制WL3、WL4、WL5回路,每联面板的短按为对回路进行开关控制,长按为对回路进行调光控制,基本功能与编程如图2所示。
图2 贵宾厅基本功能与编程
 
3 运行结果分析
     系统经过编程调试,测试运行结果如图3所示。图3为贵宾厅组态软件Wimwitch3的监控界面图,监控界面上设置总开关和各组灯光分开关,可分别对现场灯光进行集中控制。当前,左边筒灯和右边筒灯处于打开状态,其余灯光处于关闭状态,满足控制要求。应用过程中,系统现场面板和感应器的控制状态可实时反馈到监控界面,监控界面的控制命令也通过KNX总线传输到驱动器,进行相应的动作,具有很好的交互性。当出现开关面板或监控界面开关打开而灯光不亮时,可检查总线是否工作正常、驱动器是否正常及回路断路器是否处于打开的状态,判断故障原因,便于查找故障。系统采用6324面板具有遥控控制功能,通过相应的遥控开关,可实现系统的遥控控制。
图3系统监控界面图
     考虑到贵宾厅使用较少,系统在贵宾厅采用了6131移动感应器,做到有人开灯、无人延时关灯,即节约能量,又实现人性化的管理。大会议室采用报告会场景、演讲会场景、清扫场景、离开 场景等多种场景,合理控制开灯时间和调节灯光亮度,提供光源利用率,实现了节能效果。
系统应用过程中,KNX总线系统在保证独立运行的同时,可通过标准TCP/IP协议和网关接口或采用RS232接口就可以同整栋大楼的BA系统,或上层管理平台BMS服务器和其他系统进行数据交换和共享;通过系统输入元件,接受其他系统或工作人员发出的干结点信号和交直流信号,实现消防系统、安保系统、音响系统和会议系统的联动,使控制的灯光或设备进行及时变化。因此,采用KNX总线的智能照明系统具有控制灵活和兼容性好的优点。
 
4 开云官方端网站登录入口智能照明控制系统
4.1系统简介
     Acrel-BUS智能照明控制系统,是基于KNX总线技术设计的控制系统。KNX总线技术起源于欧洲,是在EIB,Batibus和EHS这三种住宅和楼宇的总线控制技术上发展起来的,其中EIB(EuropeanInstallationBus,欧洲安装总线)是该总线技术的主体。
     Acrel-BUS智能照明控制系统采用标准的2*2*0.8EIBBUS总线(即KNX总线)作为总线线缆,将所有的智能照明控制模块连接到一起并组成一套完整的控制系统,既可实现照明灯具的远程集中控制,又可实现就近控制功能。该系统理论可连接控制模块数量达580000多个。
开云官方端网站登录入口智能照明产品种类齐全,方案完善。用户可通过控制面板、人体感应、照度感应、微波感应、上位机系统、触摸屏、手机、平板端等多种控制终端实现灵活多样的智能控制,特别适合于各类智能小区、医院、学校、酒店,以及体育场所、机场、隧道、车站等大型公建项目的照明系统。
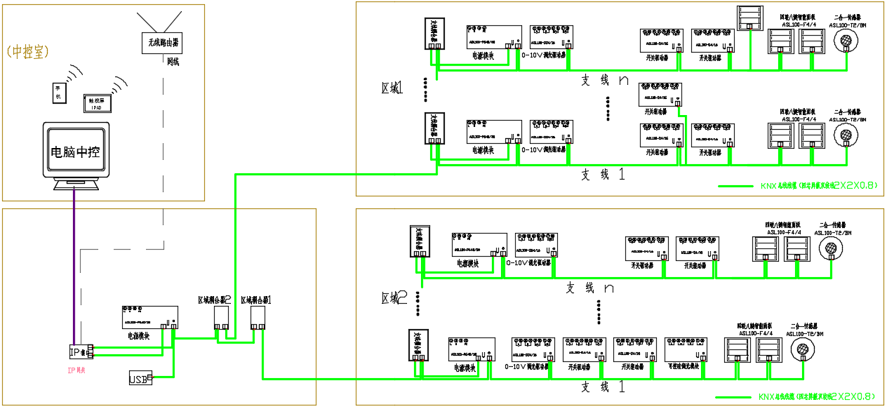
4.2系统工作原理示意图
4.3产品选型
 
4.3.1开关驱动器
     用于对设备进行开关控制的驱动器,具有延时、预设、逻辑控制、场景、阈值开关等功能,电气参数如下:
4.3.2调光驱动器
     2路0-10V调光器,可对每路进行回路开关控制并输出0-10V调光信号对具有0-10V调光接口的灯具进行调光,具有开关、场景、状态反馈等功能,电气参数如下:
 
4.3.3传感器
     传感器是一种能感受外界信号、物理条件(如光、移动)的设备装置,并将感应的信息传递给其它设备装置(如调光器、开关驱动器),电气参数如下:
 
4.3.4总线电源
KNX/EIB系统标准供电电源,为总线提供电压640mA输出电流,至多可以为64个设备供电,带总线复位、过流指示和短路保护。标准导轨安装,电气参数如下:
4.3.5智能面板
     用于接受按键触动信号,可通过区分短按与长按并结合不同参数配置实现开关、调光、场景、窗帘控制、调温、报警等功能,电气参数如下:
4.3.6干接点输入模块
     用于接受外部干接点信号输入,可通过不同参数配置实现开关、调光、场景、窗帘控制、调温、报警等功能,电气参数如下:
 
 
4.4系统功能
(1)光照度(需要配照度传感器)监测,对利用自然光照明区域,根据自然光照度变化,进行照明控制和调节,满足照明和节能要求;
(2)公共区域、走廊、通道、门厅、电梯厅等的照明,应设置红外或微波类人体感应器,并结合智能控制面板,实现各种场景照明控制,尽可能较少灯具点亮时间;
(3)楼梯间照明采用人体感应探测控制;
(4)设备房、设备房走道采用分组就地控制;
(5)室外路灯、景观等照明采用光照度控制结合时控的集中控制方式;
(6)监控系统界面友好,画面美观,实时显示各区照明工作状态;
(7)应具有完善的用户权限管理功能,避免越权操作;
 
4.5系统应用领域
4.6系统的控制优势
(1)系统可通过、触摸屏、电脑对现场的灯光、空调及窗帘等进行远程集中控制,使得控制更加方便智能,用户体验更好;
(2)系统中控制模块均工作在直流30V安全电压下,用户操作更加安全、舒适;
(3)系统在实施过程中,充分结合自然光及人员的活动规律来自动控制灯光,减少能源消耗,达到很好的节能效果;
(4)系统采用分布分布式KNX总线结构,搭建简单灵活,系统内各模块互不影响,可独立工作,可靠性更高;
(5)多种控制方式可供选择,如本地控制,自动感应控制,定时控制,场景控制和集中控制等,控制方式更灵活;
(6)系统的自动控制、远程集中控制等功能,在实现自动化的同时,大量减少了值班人员,提高了管理水平和工作效果;
(7)升级系统内控制模块或更改系统功能时,无需增加连接线,不需关闭整个系统,只需更改设备参数即可实现,维护方便,操作简单;
(8)系统可与消防系统联动,在出现消防报警时,强制打开应急回路,方便人员疏散,从而降低了人员伤亡的风险,提高了建筑的安全性。
 
4.7开云官方端网站登录入口组网方案
 
     智能照明控制系统组网方式灵活,扩展方便,当系统模块数量较少、距离较近、范围较小时,各设备以树形枝状延伸,构成支路系统智能照明控制系统;当系统模块数量较多、距离较远、范围较大时,用支线耦合器组成多条支路,构成区域智能照明控制系统;当系统模块数量很多、距离很远、范围很大时,用支线耦合器、区域耦合器等构成楼群智能照明控制系统。
 
5  结 语
     KNX总线智能照明系统采用KNX总线电缆连接传感器、驱动器和总线元件,通过编程实现了系统的开关控制、调光控制和遥控等多种灵活控制功能,满足了系统控制要求。采用组态软件Winswiteh3实现系统集中控制,减少了管理人员的工作量,采用移动感应器、场景控制等控制方法,合理利用能量,延长了灯具的使用寿命,通过以太网接1:3、输入元件等可实现与其他系统的数据共享和任务联动控制,不仅满足了现代化建筑复杂多变的环境需要,还能够满足人们对安全性、舒适性、节能性和智能化等方面的要求,有很大的发展前景。 
 
【参考文献】
[1]张玉杰,李栋,郭向阳.基于互联网+的电力载波路灯照明系统设计[J].电子器件,2017,40(3):651—655. 
[2] 胡兵.KNX现场总线控制在智能照明系统的应用.
[3]开云官方端网站登录入口企业微电网设计与应用手册2020.06版.


开云官方

公司简介

产品展示

Acrel-5000园区厂房能源监测管理系统 能源监测管理系统 能耗计量分析系统 光伏双向计量 学校智慧用电

服务与支持

技术文章新闻中心

联系我们

联系方式在线留言

电瓶车充电桩、电动汽车充电桩禁止非法改装!

版权所有 © 2026 开云官方端网站登录入口-开云online(中国)    备案号:

技术支持:仪表网    管理登陆    sitemap.xml

手机:TEL

13774417047

地址:ADDRESS

上海市嘉定区育绿路253号

扫码关注我们