
产品分类
更新时间:2023-12-01
浏览次数:636胡冠楠
开云官方端网站登录入口电气股份有限公司 上海嘉定
【摘要】随着2019年GB51309-2018《消防应急照明和疏散指示系统技术标准》的发布,如何合理、安全可靠、经济实用、节能环保的设计消防应急照明及疏散指示系统就尤为重要。对于民用建筑来说,疏散应急照明系统的设计并无争议,但对于石油化工装置来说,本规范在应用中就有诸多的争议性。本文针对石油化工装置中消防应急照明和疏散指示照明的设计方案进行简单的剖析。
【关键词】:消防备用照明;生产备用照明;疏散指示照明
1石油化工装置应急照明系统的分类
石油化工装置应急照明系统的分类,可以参考照明设计手册(第二十一章,应急照明分类图。而石化装置的分类通常是参考GB50016-2014(2018版)建筑设计防火规范进行分类,也就是手册(手册全名)中的b类,消防应急照明+疏散指示照明分为:1)疏散照明:2)备用照明,而备用照明又分为消防备用照明和生产备用照明。本次我们仅针对疏散照明进行
2疏散照明在石化项目中的设置
在石油化工装置项目电气设计中,首先是否增设疏散应急照明系统,什么类型的场所需要增设疏散应急照明系统和常规民用建筑项目一致主要依据GB50016-2014建筑设计防火规范(2018年版),以及GB51309-2018消防应急照明和疏散指示系统技术标准。按照GB50016中要求,石油化工项目中涉及的民用建筑、厂房和丙类仓库的封闭楼梯间、防烟楼梯间及前室、消防电梯间前室及合用前室需要设置疏散照明灯具;人员密集的厂房内的生产场所及疏散走道需要设置疏散照明灯具:高层厂房(仓库)和甲乙、丙类单、多层厂房需要设置疏散指示灯具。再结合GB51309中3.2.5照明灯的部位要求,可以得出石油化工类项目一般在甲、乙、丙类广房丙类仓库及配电室中增设消防应急照明灯具及疏散指示灯具,在其他防火类别广房的封闭楼梯间内仅增设消防应急照明灯具。但此部分是有争议的,例如:丁、戊类广房既然不增设疏散指示标志灯为何需要增设消防应急照明灯具,丁、戊类厂房基本无燃烧物,而且丁、戊类的厂房按规范也无需增设火灾报警系统,无火灾报警系统又如何与疏散应急照明进行联动。而与此同时,随着时代的进步,石油化工装置自动化愈加成熟完善,所以石化项目大部分设计院在做这部分内容时均只在甲、乙、丙类广房及丙类仓库中考虑疏散应急照明系统。同时结合石油化工项目特点,·般室外框架的灯具均为光控时控自动控制,所以框架的构筑物(厂房)就不增设疏散照明灯具。
3疏散照明的设计要点
疏散应急照明在石油化工项目设计中,设计要点如下:
首先应确定选择疏散应急照明系统的类型,根据GB51309中规定,设置了消防控制室的应该选择集中控制型疏散应急照明系统:设置了火灾自动报警系统,但没有设置消防控制室的宜选用集中控制型疏散应急照明系统。而石油化工项目都是由火灾报警系统的,故均采用集中控制型系统。
其次应该确认灯具的安装位置,按照规范布置后再确定集中电源箱灯具配电回路的设计,应按防火分区划分,同一防火分区设计为同一配电路:防烟楼梯间前室内灯具及合用前室内灯具应与所在楼层内灯具设置为同一回路:封闭楼梯间、防烟楼梯间、室外疏散楼梯应单独设置为同配电回路:涉及到发生火灾时候仍然需要工作的区域,如配电室、消防水泵房、消防控制室自备发电机房和相关疏散通道均应单独设置为同一配电回路。
任意配电回路灯具数量应结合直流电缆的压降损耗、供电距离及导体截面计算后进行确认理论上建议灯具数量不超过25个,单个回路的电流不超过4.8A。回路的数量不超过8个。
*后对集中电源箱的安装位置进行设计。以及GB51309规范中的要求,A型集中电源配电箱《带蓄电池)应安装在消防控制室、配电间.低压配电室、电气竖井内。此条文在石化项目设计中较为矛盾,因为石化项目中全厂区一般只有消防控制室,同时并无电气竖井,无论是从消防控制室还是从配电室供电,至现场灯具的距离均不在合理设计范围内,直流电源的压降损耗、供电距离均不满足要求,故针对此问题编制规范的专家专门进行澄清,随着科技的发展及相应产品的出线,石化项目可选用相应防爆及三防的集中电源箱,并可将集中电源箱设置在相应房内只要箱子的防护等级及防爆级别组别满足要求即可。
4疏散照明布线的设计
疏散照明根据规范属于消防负荷,故其布线应满足消防负荷的要求,当线路暗敷设时,应穿管(金属管、可弯曲金属电气导管或B1级及以上的刚性塑料管)并敷设在不燃性结构内且保护层厚度不应小于30mm;当敷设方式采用明敷设时候,电线应采用密闭金属槽盒或穿金属导管保护,密闭金属槽盒或金属导管应采取相应的防火措施保护:但当采用矿物绝缘类不燃性电缆时候可直接明敷设。
5.1系统概述
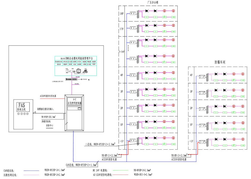
消防应急照明和疏散指示系统主要由应急照明控制器、消防应急照明集中电源或应急照明配电箱、消防应急灯具等几部分组成。该套系统可以满足与AcrelEMS企业微电网管理云平台或火灾自动报警系统等进行数据交换和共享。
该系统配合火灾报警控制器使用时,在平时对系统内的设备进行实时的监视和控制,便于日常的管理和维护,保障系统的稳定运行。基于此保证在火灾发生时,能够准确改变消防应急标志灯具的指示方向,点亮消防应急照明灯,帮助建筑内的人群选择逃生疏散路线,指引安全的逃生方向,保障群众的人身安全,为各类用户担心的安全问题解决了后顾之忧。
5.2应用场所
适用于住宅、酒店、办公楼、商城综合体、医院、隧道管廊、轨道交通、地库、仓库、工厂等各行业的消防应急照明和疏散指示系统。
5.3系统结构

5.4系统功能
5.4.1系统运行主界面
包含工具栏、平面展示、图层列表、状态栏,可以直观的查看监控设备的运行状态,并根据状态栏的现实内容直接切换至故障具体位置。
5.4.2灯具配置界面
可以查看所有灯具状态与数量。
5.4.3信息界面
可查看历史操作、故障、事件信息、可按日期进行查询。
5.4.4权限管理界面
主要由应急启动、应急停止与手动火警组成,应急启动与停止用来测试设备应急功能是否正常,手动火警测试再具体着火点下系统的启动情况。

5.5系统硬件配置
5.5.1应急照明控制器选型
产品名称 | 产品型号 | 规格描述 | 防护等级 | 尺寸(H*W*D/Φ*Hmm) | 安装方式 | 备注 |
应急照明控制器 | A-C-A100 | 控制器通过总线网络实时监控各个终端,在险情发生时,自动将信息指令发布到每个终端,终端收到指令之后自动开始工作,如频闪、变向、开、灭灯等工作,实时指示好的疏散路线。安装地点:消控室 | IP30 | 1300*550*560 | 琴台式 | 可支持图层显示,协议联动 |
应急照明控制器 | A-C-A100/B3 | IP30 | 400*300*160 | 壁挂式 | 仅支持开关量联动 | |
5.5.2应急照明集中电源 | ||||||
产品名称 | 产品型号 | 规格描述 | 防护等级 | 尺寸(H*W*D/Φ*Hmm) | 安装方式 | 备注 |
消防应急灯具电源 | A-D-0.2KVA-A200L | 当建筑物发生紧急情况时,应急电源可以为消防标志灯、照明灯提供应急供电,保证消防应急照明和疏散指示灯正常工作,共有4个回路,单个回路不超100W,总功率不超额定功率。安装地点:配电间 | IP33 | 500*400*200 | 壁挂式 | |
消防应急灯具电源 | A-D-0.3KVA-A200FP A-D-0.5KVA-A200FP A-D-0.65KVA-A200FP | 当建筑物发生紧急情况时,应急电源可以为消防标志灯、照明灯提供应急供电,保证消防应急照明和疏散指示灯正常工作,共有8个回路,单个回路不超100W,总功率不超额定功率。安装地点:配电间 | IP33 | 750*600*280 | 壁挂式 | |
消防应急灯具电源 | A-D-1KVA-A200L | IP33 | 750*600*280 | 壁挂式 | ||
消防应急灯具电源 | A-D-0.3KVA-A200L | IP65 | 500*400*200 | 壁挂式 | ||
消防应急灯具电源 | A-D-0.5KVA-A200L A-D-0.75KVA-A200L | IP65 | 600*480*230 | 壁挂式 | ||
5.5.3防爆应急照明集中电源 | ||||||
产品名称 | 产品型号 | 规格描述 | 防护等级 | 尺寸(H*W*D/Φ*Hmm) | 安装方式 | 备注 |
消防应急灯具电源(防爆) | A-D-0.3KVA-A200EX A-D-0.5KVA-A200EX | 当建筑物发生紧急情况时,应急电源可以为消防标志灯、照明灯提供应急供电,保证消防应急照明和疏散指示灯正常工作,共有8个回路,单个回路不超100W,总功率不超额定功率。安装地点:配电间 | IP43 | 904*702*220 | 壁挂式 | |
消防应急灯具电源(防爆) | A-D-1KVA-A200EX | 当建筑物发生紧急情况时,应急电源可以为消防标志灯、照明灯提供应急供电,保证消防应急照明和疏散指示灯正常工作,共有8个回路,单个回路不超100W,总功率不超额定功率。安装地点:配电间 | IP43 | 1354*702*220 | 壁挂式 | |
5.5.4A型集中电源集中控制灯具选型
产品名称 | 产品型号 | 规格描述 | 防护等级 | 尺寸(H*W*D/Φ*Hmm) | 安装方式 |
超薄单面 疏散指示灯 | A-BLJC-1LROXEII1W-A431B | 实时上报工作状态,远程控制频闪、方向调整功能 | IP30 | 128*355*9 | 壁挂式 |
高防护单面疏散指示灯 | A-BLJC-1LROEII1W-A431H | 实时上报工作状态,远程控制频闪、方向调整功能,IP等级67 | IP67 | 145*400*15 | 壁挂式 |
防爆疏散指示灯 | A-BLJC-1LROEI1W-A431EX | 实时上报工作状态,远程控制频闪功能,防爆等级:ExdeIICT6Gb/ExtDA21IP66T80℃ | IP65 | 165*375*65 | 壁挂式 |
嵌顶照明灯 | A-ZFJC-EXW-A631 | 实时上报工作状态,开启点亮、关闭功能 | IP30 | Φ120*H57 | 嵌顶式 |
壁挂照明灯 | A-ZFJC-EXW-A630B | 实时上报工作状态,开启点亮、关闭功能 | IP30 | 119*209*75 | 壁挂式 |
吸顶照明灯 | A-ZFJC-EXW-A803 | 实时上报工作状态,开启点亮、关闭功能 | IP30 | Φ101.7*H46.7 | 吸顶式 |
圆形高防护的照明灯 | A-ZFJC-EXW-A603HC | 实时上报工作状态,开启点亮、关闭功能,IP67,圆形 | IP67 | Φ175*H60 | 壁挂/吸顶式 |
椭圆高防护的照明灯 | A-ZFJC-EXW-A603HE | 实时上报工作状态,开启点亮、关闭功能,IP67,椭圆 | IP67 | 198*98*55 | 壁挂/吸顶式 |
防爆壁挂照明灯 | A-ZFJC-EXW-A630EX | 实时上报工作状态,开启点亮、关闭功能,防爆等级:ExdeibqIICT6Gb/ExibDtDA21IP66T80℃ | IP65 | 256*243*78 | 壁挂式 |
防爆吊管照明灯 | A-ZFJC-EXW-A632EX | 实时上报工作状态,开启点亮、关闭功能,防爆等级:ExdeibqIICT6Gb/ExibDtDA21IP66T80℃ | IP66 | Φ135mm*H168mm | 吊管式 |
5.5.5A型自带电池非集中电源集中控制型消防应急照明及疏散指示设备选型
产品名称 | 产品型号 | 规格描述 | 防护等级 | 尺寸(H*W*D/Φ*Hmm) | 安装方式 |
应急照明配电箱 | A-PD-A300(200W) A-PD-A300(500W) A-PD-A300(1000W) | 配电箱可以为消防标志灯、照明灯供电,保证消防应急照明和疏散指示系统正常工作。安装地点:配电间 | IP65 | 450*360*150 | 壁挂 |
应急照明(防爆) 配电箱 | A-PD-A300EX(500W) | 配电箱可以为消防标志灯、照明灯供电,保证消防应急照明和疏散指示系统正常工作。安装地点:配电间 | IP65 | 702*452*220 | 壁挂 |
(防爆)疏散指示灯 | A-BLZC-1LROEI1W-D431EX | 实时上报工作状态,远程控制频闪功能,防爆等级:ExdeIICT6Gb/ExtDA21IP66T80℃ | IP65 | 375*165*63 | 壁挂 |
(防爆)壁挂照明灯 | A-ZFZC-E10W-D630EX | 实时上报工作状态,开启点亮、关闭功能,防爆等级:ExdeibqIICT6Gb/ExibDtDA21IP66T80℃ | IP66 | 256*243*78 | 壁挂式 |
(防爆)吊管照明灯 | A-ZFZC-E3W-D632EX | IP66 | Φ135mm*H168mm | 吊管 |
6.结束语
近几年,随着智慧消防一体化设备的普及,越来越多的自动化设备应用到了石油化工项目,但由于石油化工项目的特殊性,更多针对于民用建筑的规范在石油化工项目中如何执行存在着争议,冬家石化行业的设计院设计方式也略有不司,本文结合了多家石化行业设计院针对疏散照明的设计方法,针对奇异较大,难点较多的设计问题具体做法做简要阐述。为疏散照明在石化项目中设计方法提供参考。
参考文献
[1]北京照明学会照明设计专业委员会.照明设计手册(第三版)[K],科学出版社.2016-12.
[2]中国人民共和国公安部.建筑设计防火规范[S].GB50016-2014.中国计划出版社.2015-05-01.
[3]中华人民共和国应急管理部.消防应急照明和疏散指示系统技术标准[S].GB51309-2018.中国计划出版社.2019-03-01.
[4]李鹏,宋树云.住宅建筑应急照明和疏散指示系统设计浅析门,中国住宅设施.2022(01).
[5]王帅,刘媛.消防应急照明和疏散指示系统在石化项目的实际应用[J].
[6]开云官方端网站登录入口企业微电网设计与应用手册2022.05版.