产品分类

PRODUCT CATEGORY

技术文章/ TECHNICAL ARTICLES

我的位置:首页  >  技术文章  >  消防应急疏散指示系统在某居民社区综合体项目的应用

消防应急疏散指示系统在某居民社区综合体项目的应用

更新时间:2023-04-20      浏览次数:659
胡冠楠
开云官方端网站登录入口电气股份有限公司  上海嘉定
【摘要】:消防应急照明和疏散指示系统由控制器、集中电源和灯具(疏散指示灯具、应急照明灯具)等几部分组成。系统采用17寸工业平板电脑、Windonws7系统,可支持联动报警、系统监控、故障报警、自检、备电、记录存储与查询、导光流、权限控制等多项功能,具有集中控制、灵活性高和可靠性强等特点。配合超薄标志灯与多款安装方式不同、光效不同的应急照明灯具,适用于区域内存在多种建筑类型,如幼儿园、小区、商业大楼、社区医院等,具有范围广、单体建筑多、防火分区多等特点的项目。
 
【关键词】:集中电源;集中控制;消防应急照明和疏散指示系统;A-C-A100;居民社区综合体
 
0 . 前言
       随着经济与科技的迅猛发展,人们开始追求建筑设施的人性化、现代化,大量高层建筑、特大型建筑,及地下建筑的涌现导致建筑物通道更长、更复杂。随着人们安全意识的提高,本着以人为本、生命安全为重的想法,对于人员密集、疏散距离长、疏散通道多、拐弯多、环境复杂的建筑,采用传统的疏散指示方式不能及时对灯具进行维护管理,造成火灾时大面积失效产生人员伤亡。为了避免造成群死群伤,实施迅速有效的应急疏散系统,集中控制型应急照明和疏散指示系统应运而生,可准确实现对各应急灯具的实时监控和控制、日常24小时管理维护,保证系统运行正常,在发生火灾时准确、迅速的引导人员到达安全区域,减少人员伤亡。
 
1. 项目介绍
       本项目是居民社区综合体项目,包括23个小区(189栋主楼及23万平方米地库)、2栋幼儿园、1栋商业综合体、1栋社区医院,总建筑面积约1140万平方米,地下总建设面积约470万平方米。在其中心,布局文化休闲和商业服务功能;环绕公园,布局新一代信息技术等高新产业功能,发展汇集数字城市、数字设计、设计创意、软件开发等新型产业;在片区西部,布局商务、商业、金融和旅游配套服务功能;在片区东部,建设创业平台和传统产业的设计研发设施。依托四个生活居住区布局公共服务中心,结合社区中心和邻里中心安排商业服务和社会服务功能;在中央生态绿带西侧布置辅助配套服务区。要求各场所内应急疏散标志采用消防智能应急疏散指示逃生系统,当火灾消防或应急发生时,可通过火灾监控系统的烟感探头等检测到具体的火灾位置,并以通信方式将指令传输至本系统的消防主机,以控制场所内疏散标志的箭头指向,确保人员沿正确的方向逃生及疏散。
 
2. 现场项目应用产品简介
2.1 消防应急照明和疏散指示系统
       消防应急照明与疏散指示系统由控制器(主机)、集中电源和灯具(疏散指示灯具、应急照明灯具)等几部分组成。因本项目产品过多,此处只介绍主要产品。
       控制器是消防应急照明和疏散指示系统的系统主机。控制器通过总线网络实时监控各个终端,可以实时上报每个设备及灯具故障。在险情发生时,自动将信息指令发布到每个终端,终端收到指令之后开始工作,如频闪、开、灭灯等工作,实时指示安全的疏散路线。
       集中电源是安装在建筑物内的备用集中式应急电源装置。当建筑物发生火灾、事故或其他紧急情况时,应急电源可以为消防标志灯、照明灯提供应急供电,保证消防应急照明和疏散指示正常工作。
       消防应急照明灯为人员疏散逃生提供照明。其安装方式有壁挂式、吸顶式、嵌顶式。
       疏散应急标志灯具为人员疏散逃生指引方向。其安装方式有壁挂式、吊挂式、地埋式。
2.2 A-C-A100控制器
2.2.1 产品图片及技术参数
图1  A-C-A100产品图片及技术参数
2.3 集中电源
2.3.1 A-D-0.75KVA-A200L产品图片及技术参数
 
图2  A-D-0.75KVA-A200L产品图片及技术参数
2.4 灯具
       当发生火灾时,消防应急标志灯具为人员提供应急疏散的指示方向,左向、右向和双向的标志灯具一般用于指示疏散的走向,无方向的标志灯具一般用于指示安全出口、楼层和避难间,其安装方式为壁挂式、地埋式。消防应急照明灯具为人员疏散逃生提供照明,其安装方式为壁挂式、嵌顶式、吸顶式。
       本产品广泛应用于机场、大型商场、写字楼等公共场所安全通道出入口、走廊拐角处。
 
3 现场应用 
3.1 系统组网图
图3  系统组网图
3.2 现场部分系统图
       本项目采用的方案是,灯具到集中电源通常二总线用法,集中电源到琴台控制器中间使用CAN中继扩展CAN总线支路、延长总线距离。
 
图4  D1组团楼栋
 
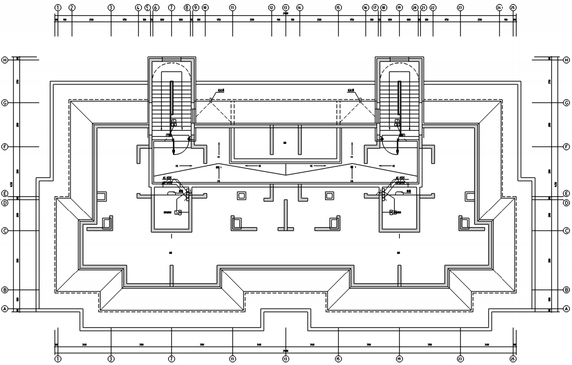
图5  幼儿园二层
 
图6  90户型消防平面图_18-105
 
3.3 系统软件运行界面
系统运行主界面             
包含工具栏、平面展示、图层列表、状态栏,       可以查看所有灯具状态与数量
可以直观的查看监控设备的运行状态,并根据
状态栏的现实内容直接切换至故障具体位置
             事件记录界面                                           
 
 
 
可查看历史操作、故障信息,可按日期进行   
查询
  灯具配置界面
    
 可以查看所有灯具状态与数量
 
3.4 设备现场应用照片
      
4. 结束语
       随着我国经济的快速发展,科技的进步,建筑智能化及建筑消防的重视程度也随之提高,本文分析了本司生产的消防应急照明和疏散指示系统在居民社区综合体项目的应运,充分展现了在该类项目的组网中简单、灵活、稳定、低成本的优势。通过消防应急疏散系统能够解决传统消防应急疏散指示系统无集中控制、指示方向固定、疏散线路不能改变、指示效果不理想、安全性能低等问题。
       开云官方端网站登录入口电气着力打造各类火灾安防系统的产品,在满足国家行业标准要求的前提下,为各类建筑提供智能、高效、节能、廉价的消防方案与消防产品,为防火减灾、保障人民生命财产安全方面尽一份力!
 
参考文献
       [1].开云官方端网站登录入口电气股份有限公司产品选型手册.2018.01
       [2].GB50116-2014 建筑设计防火规范[S].
       [3].GB17945-2010《消防应急照明和疏散指示系统》[S].
       [4].GB51309-2018《消防应急照明和疏散指示系统技术标准》[S].
 


开云官方

公司简介

产品展示

Acrel-5000园区厂房能源监测管理系统 能源监测管理系统 能耗计量分析系统 光伏双向计量 学校智慧用电

服务与支持

技术文章新闻中心

联系我们

联系方式在线留言

电瓶车充电桩、电动汽车充电桩禁止非法改装!

版权所有 © 2026 开云官方端网站登录入口-开云online(中国)    备案号:

技术支持:仪表网    管理登陆    sitemap.xml

手机:TEL

13774417047

地址:ADDRESS

上海市嘉定区育绿路253号

扫码关注我们